Gymnasium Immensee Sanierung und Umbau
Gymnasium Immensee Sanierung und Umbau
Planerwahlverfahren 1. Rang
Zeitraum2020 - 2026AuftraggeberInGymnasium Immensee
GUAnliker AG









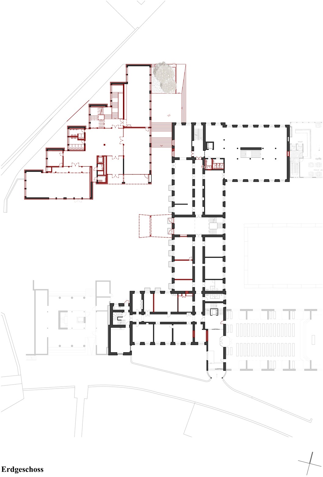
Das Gymnasium Immensee plant eine Anpassung an die neuen und zukünftigen Gegebenheiten und soll umfassend saniert werden. Der Planungsperimeter liegt in der näheren Umgebung der Schutzzone für historische und kulturelle Stätten, der geschichtsträchtigen Hohlen Gasse und der Tellskapelle. Der Z-Bau aus dem Jahr 1896 befindet sich im kantonalen Inventar geschützter Bauten und bildet das Herzstück der Anlage, ergänzt wird dieser durch das in den 70er Jahren erbauten Oberschulgymnasium und dem aus den 90er Jahren hervorgegangenen Ersatzneubau des Barrallhauses welches als Internat dient.
Die Kernidee des Entwurfs besteht im loslösen des Obergymnasiums vom Z-Bau. Heute sind die beiden Gebäude durch den Musiktrakt bis auf Höhe Erdgeschoss miteinander verbunden. Die Trennung bzw. der entstehende Zwischenraum ermöglicht eine Verbindung des neu entstehenden Aussenraumes zwischen der neu entstehenden Sporthalle und dem Gymnasium und dem westlichen Schulhof. Dieser bestehende etwas abgekehrte Hof soll wieder zum zentralen Aussen- und Zugangsraum werden. Der ursprüngliche Haupteingang ins Gymnasium im Z-Bau wird wieder an diesen Hof verlagert. Die einzelnen Gebäude, unterschieden in Z-Bau, Obergymnasium, Turm und Barralhaus sollen in ihrer Nutzung geklärt werden.
Im Z-Bau wird mit gezielten Eingriffen auf allen Geschossen insgesamt eine bessere Übersicht und Einheit angestrebt. Die Fachzimmer Chemie, Physik und Biologie und ihre zugehörigen Nebenräume werden ins Obergymnasium verlagert. Alle durch Umbauten tangierten Räume werden komplett erneuert und mit neuen technischen Anlagen versehen.
Die heute als Internat genutzten Obergeschosse des Obergymnasiums werden aufgrund des geringeren Bedarfs an Internatszimmern und ihrer kleinteiligen Struktur komplett rückgebaut. Erd- und Untergeschoss werden in den Rohbau zurückgeführt und mit zwei neue Geschossen in Holzbauweise wiederum Aufgestockt. Hier finden zusätzliche Klassen- und Fachzimmer Platz. Ergänzt werden diese durch eine neue Vertikalerschliessung mit Lift, einem Musikzimmer, und neuen Nasszellen auf allen Ebenen. Zudem wird der bestehenden Struktur im Erdgeschoss eine zweigeschossige Aula einbeschrieben. Die Vorgaben durch die relativ starre Struktur und die Stufenfassade Richtung Nordwesten wird im neuen Raumkonzept berücksichtigt und lesbar beibehalten.